Ritten - Unterinn
Neubau einer Bibliothek (Klimahaus Standard A)
Status: Abgeschlossen
Ritten - Unterplatten
Energetische Sanierung und Erweiterung eines Wohnhauses, sowie Bau einer unterirdischen Garage als Zubehör zur Wohnung
Status: Abgeschlossen
Jenesien - Flaas
Bau eines geförderten Wohnhauses mit zwei Wohneinheiten, sowie von zwei Garagen als Zubehör zum den Wohneinheiten
Status: Im Bau
Ritten - Oberbozen
Bauliche Umgestaltung, energetische Sanierung und Erweiterung eines bestehenden Wohnhauses
Status: Abgeschlossen
Ritten - Lengstein
Schaffung einer neuen Wohneinheit für die Jungbäuerin, sowie einer zusätzlichen Wohnung für Urlaub auf dem Bauernhof
Status: Abgeschlossen
Ritten - Klobenstein
Bau eines geförderten Wohnhauses mit zwei Wohneinheiten, sowie einer Gemeinschaftsgarage
Status: Abgeschlossen
Ritten - Unterinn
Erweiterung und Sanierung eines Betriebsgebäudes, sowie Schaffung einer Betriebswohnung.
Status: Abgeschlossen
Ritten - Oberbozen
Sanierung und Erweiterung eines bestehenden Wohnhauses, mit zusätzlicher energetischer Sanierung und Erweiterung
Status: Abgeschlossen
Ritten - Klobenstein
Teilabbruch, Sanierung und Erweiterung eines bestehenden Wohnhauses, mit zusätzlicher energetischer Sanierung
Status: Abgeschlossen
Ritten - Oberbozen
Neubau von 2 Wohnhäusern in Oberbozen - Erstellung der Klimahausberechnung, des Teilungsplanes, der materielle Teilung, sowie der Gebäudekatastermeldung
Status: Abgeschlossen
Ritten - Oberbozen
Energetische Sanierung, Sanierung der beider Wohneinheiten und Erweiterung eines bestehenden Wohnhauses
Status: Abgeschlossen
Ritten - Klobenstein
Energetische Sanierung, sowie Erweiterung eines bestehenden Dachgeschosses
Status: Abgeschlossen
Ritten - Klobenstein
Erweiterung, energetische Sanierung und bauliche Umgestaltung eines Reihenhauses am Ritten.
Status: Abgeschlossen
Ritten - Gissmann
Abbruch und Wiederaufbau eines Weidestalles mit Scheune.
Status: Abgeschlossen
Ritten - Unterrotwand
Abbruch und Wiederaufbau eines Wohnhauses .
Status: Abgeschlossen
Ritten - Gissmann
Abbruch & Wiederaufbau (im selben Ausmaß) eines aus Sicherheiheitsgründen abgebrochenen Wohnhauses.
Status: Abgeschlossen
Barbian
Abbruch & Wiederaufbau eines Wohnhauses
Status: Abgeschlossen
Ritten - Unterinn
Energetische Sanierung, Erweiterung und Ausbau des bestehenden Dachbodens in eine Wohnung.
Status: Abgeschlossen
Ritten - Wolfsgruben
Schaffung einer Wohnung für den Jungbauern.
Status: Abgeschlossen
Ritten - Klobenstein
Bauleitung und Ausführungsplanung einer energetischen Sanierung, sowie Erweiterung und Bau einer unterirdischen Garage
Status: Abgeschlossen
Ritten - Himmelreich
Abbruch und Wiederaufbau eines Weidestalles mit Heulager
Status: Abgeschlossen
Ritten - Mittelberg
Für den Abbruch und Wiederaufbau eines Wohnhauses
Status: Abgeschlossen
Ritten - Mittelberg
Projekt zur Errichtung eines neuen Bauernhauses
Status: Abgeschlossen
Ritten - Oberbozen
Bestandsaufnahme, sowie Lage- und Höhenmermessung eines Hotelbetriebes am Ritten.
Status: Abgeschlossen
Ritten - Oberbozen
Energetische Sanierung, sowie Erweiterung eines bestehenden Wohnhauses und Bau einer unterirdischen Garage
Status: Abgeschlossen
Ritten - Lengstein
Energetische Sanierung, sowie Erweiterung eines bestehenden Wohnhauses und Bau einer unterirdischen Garage
Status: Abgeschlossen
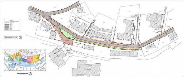
Ritten - Wangen
Verbreiterung einer Dorfeinfahrt
Status: Abgeschlossen
Ritten - Siffian
Abbruch und Wiederaufbau eines Wirtschaftsgebäudes
Status: Abgeschlossen
Ritten - Oberbozen
Bau eines Holzlagers, sowie Fahr- und Motorradunterstandes
Status: Abgeschlossen
Ritten - Klobenstein
Bau eines neuen Wohnhauses - geförderter Wohnbau
Status: Abgeschlossen
Ritten - Signat
Bau eines Geräteraumes für die Freiwillige Feuerwehr
Status: Abgeschlossen
Ritten - Unterinn
Ausbau eines bestehenden Dachgeschosses mit Schaffung einer Wohnung
Status: Abgeschlossen
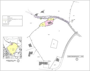
Ritten - Heidrichsberg
Durchführung einer Grenzvermessung, mit anschließender Auswertung und Absteckung
Status: Abgeschlossen
Ritten - Signat/Oberplatten
Ausbau und Sanierung eines Wanderweges
Status: Abgeschlossen
Ritten - Wolfsgruben
Bestandsaufnahme eines denkmalgeschützten Wohnhauses mit Wirtschafts- und Nebengebäuden
Status: Abgeschlossen
Sarnthein
Gebäudekatastermeldung eines landwirtschaftlichen Wohnhauses
Status: Abgeschlossen
Sarnthein
Gebäudekatastermeldung eines Wirtschaftsgebäudes
Status: Abgeschlossen
Ritten - Lengmoos
Errichtung eines Fahr- und Motorradunterstandes
Status: Abgeschlossen
Ritten - Oberbozen
Erweiterung eines bestehenden Wirtschaftsgebäudes
Status: Abgeschlossen
Ritten - Klobenstein
Teilungsplan und Gebäudekatastermeldung eines Weidestalles mit Heulager
Status: Abgeschlossen
Ritten - Lengstein
Projekt für den Abbruch und Wiederaufbau des Wirtschaftsgebäudes und Bau einer Wohnung
Status: Abgeschlossen
Ritten - Oberbozen
Lage- und Höhenvermessung mit Erstellung einer Machbarkeitsstudie zur Schaffung von Parkplätzen, sowie Zusammenlegung von Zufahrtsstraßen
Status: Abgeschlossen
Ritten - Unterinn
Errichtung eines Fahr- und Motorradunterstandes; sowie einer Grenzmauer
Status: Abgeschlossen
Ritten - Oberinn
Teilungsplan zur Erstellung von neuen Bauparzellen
Status: Abgeschlossen
Ritten - Klobenstein
Gebäudekatastermeldung einer neuen Produktionshalle
Status: Abgeschlossen
Ritten - Oberbozen
Erweiterung und Umbau eines Gerätehauses
Status: Abgeschlossen
Ritten - Oberbozen
Bau eines Auslaufes mit überdachten Liegeboxen bei einem bestehendes Wirtschaftsgebäudes
Status: Abgeschlossen
Ritten - Klobenstein
Teilungsplan zur Teilung einer Grundparzelle und Erstellung einer Bauparzelle
Status: Abgeschlossen
Ritten - Klobenstein
Schaffung von Parkplätzen bei der Arena Ritten
Status: Abgeschlossen
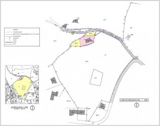
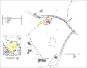
Ritten - Unterinn
Durchführung einer Grenzvermessung, mit anschließender Auswertung und Absteckung
Status: Abgeschlossen
Ritten - Oberbozen
Bau einer Holzhütte, sowie eines Fahr- und Motorradunterstandes
Status: Abgeschlossen
Ritten - Pemmern
Unterirdische Verlegung einer Mittelspannungsleitung und Bau von drei Elektrokabinen
Status: Abgeschlossen
Ritten - Unterinn
Erstellung einer neuen materiellen Teilung
Status: Abgeschlossen
Ritten - Lengstein
Gebäudekatastermeldung einer neuen errichteten Wohneinheit
Status: Abgeschlossen
Ritten - Siffian
Bestandsaufnahme eines Wirtschaftsgebäudes
Status: Abgeschlossen
Ritten - Klobenstein
Bau einer Überdachung für Unfall- und Abholautos an einem bestehenden Karosseriebetrieb
Status: Abgeschlossen
Ritten - Unterinn
Bau einer Glasfaser-POP Station
Status: Abgeschlossen
Ritten - Unterinn
Teilungsplan zur Richtigstellung des Straßenverlaufes einer Landesstraße
Status: Abgeschlossen
Ritten - Klobenstein
Bestandsaufnahme eines Restaurantes mit Pizzeria und einem Wohnhaus
Status: Abgeschlossen
Ritten - Oberbozen
Bestandsaufnahme eines Wohnhauses
Status: Abgeschlossen
Ritten - Mittelberg
Gebäudekatastermeldung einer Hofstelle
Status: Abgeschlossen
Ritten - Oberbozen
Änderung einer materiellen Teilung
Status: Abgeschlossen
Ritten - Oberbozen
Abbruch und Wiederaufbau eines Wirtschaftsgebäudes mit Sanierung des Wohnhauses
Status: Abgeschlossen
Sarnthein
Bestandsaufnahme eines Wohnhauses
Status: Abgeschlossen
Ritten - Oberbozen
Interner Umbau und Errichtung eines Wintergartens
Status: Abgeschlossen
Ritten - Lengstein
Bestandsaufnahme eines Wirtschaftsgebäudes
Status: Abgeschlossen
Ritten - Lengstein
Bestandsaufnahme eines denkmalgeschützen Wohngebäudes
Status: Abgeschlossen










































































