Geometerbüro
Dienstleistungen
Projekte & Referenzen
Kontakt
Geometer Armin Prast
» Bauprojekte
» Vermessung
» Kataster & Grundbuch
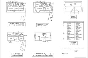
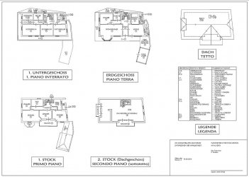
Abgeschlossen: Ritten - Unterinn
Erstellung einer neuen materiellen Teilung
Startseite
›
Projekte & Referenzen
›
Kataster & Grundbuch
›
Ritten - Unterinn
Die EU-Richtlinie 2009/136/EG (E-Privacy) regelt die Verwendung von Cookies, welche auch auf dieser Website verwendet werden! Durch die Nutzung unserer Website oder durch einen Klick auf "OK" sind Sie damit einverstanden.
Weitere Informationen
OK