Geometerbüro
Dienstleistungen
Projekte & Referenzen
Kontakt
Geometer Armin Prast
» Bauprojekte
» Vermessung
» Kataster & Grundbuch
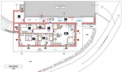
Abgeschlossen: Ritten - Wolfsgruben
Schaffung einer Wohnung für den Jungbauern.
Startseite
›
Projekte & Referenzen
›
Bauprojekte
›
Ritten - Wolfsgruben
Die EU-Richtlinie 2009/136/EG (E-Privacy) regelt die Verwendung von Cookies, welche auch auf dieser Website verwendet werden! Durch die Nutzung unserer Website oder durch einen Klick auf "OK" sind Sie damit einverstanden.
Weitere Informationen
OK